Rodinný dům Panská

místo

Jimramov

stupeň

studie

rok

2025

Architektonická studie se zabývá přestavbou rekreačního objektu na plnohodnotný rodinný dům. Stavba se nachází v severozápadní části městyse Jimramov, jehož historické jádro má mimořádně zachovalý charakter a je chráněno jako městská památková zóna. Lokalita nemá průmyslovou zátěž, leží mimo hlavní dopravní tahy a obklopuje ji krajina Žďárských vrchů.

Cílem bylo vytvořit dům s jednoduchým, ale soudobým architektonickým výrazem, který bude citlivě zasazen do prostředí v blízkosti městské památkové zóny a zároveň bude odpovídat praktickým potřebám moderního bydlení.

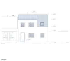
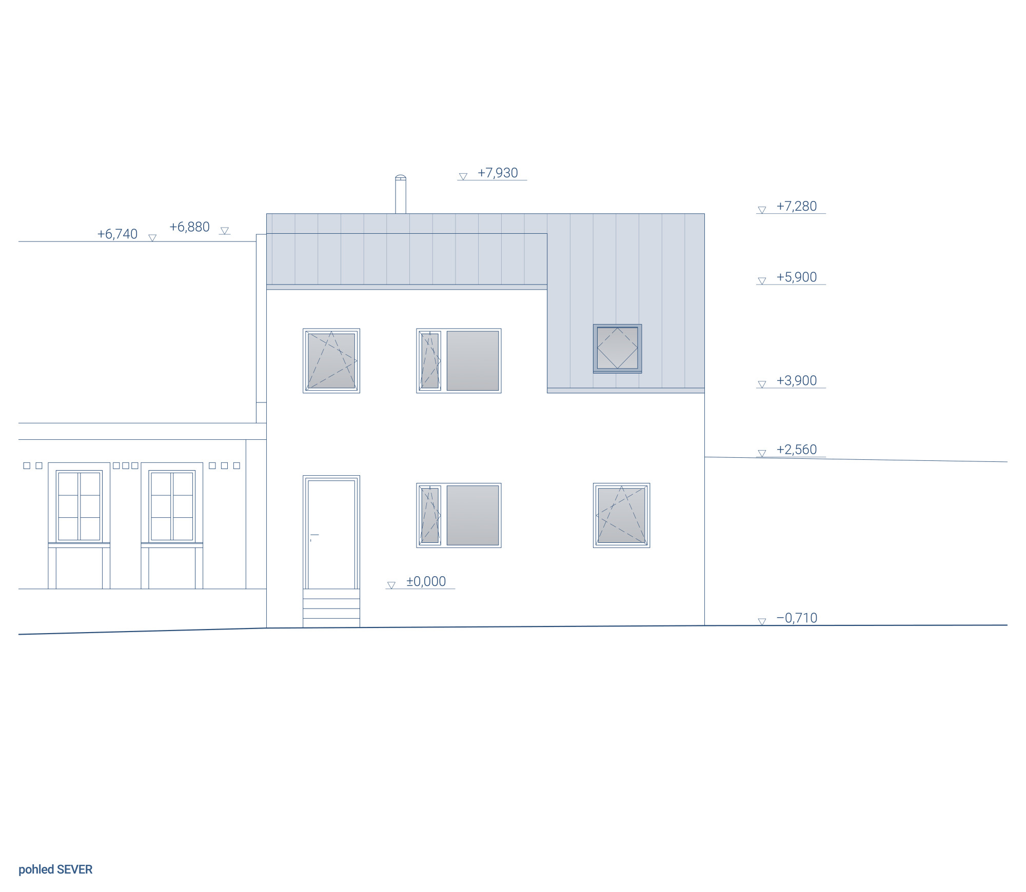
Návrh rekonstrukce vychází z původní urbanistické struktury řadových domů v ulici Panská a citlivě navazuje na její charakter i měřítko. Zastavěná plocha objektu zůstává zachována, objemově se dům mírně zvětšuje, avšak nepřevyšuje své sousedy. Hmota, podlažnost i členění fasád reflektují původní stavbu a reagují na terénní konfiguraci.

Architektonická forma je jednoduchá a funkční. Fasády budou opatřeny světlou minerální omítkou, střecha z falcovaného plechu bude laděna do světlého odstínu. Okna a dveře ponesou přirozený vzhled dřeva. Dům doplňuje terasa s pergolou orientovaná do klidné zahrady chráněné živým plotem.

geneze návrhu

Proces vzniku architektonického návrhu se soustředil především na dvě klíčové úlohy – nalezení optimální hmoty stavby a vhodného řešení schodiště.

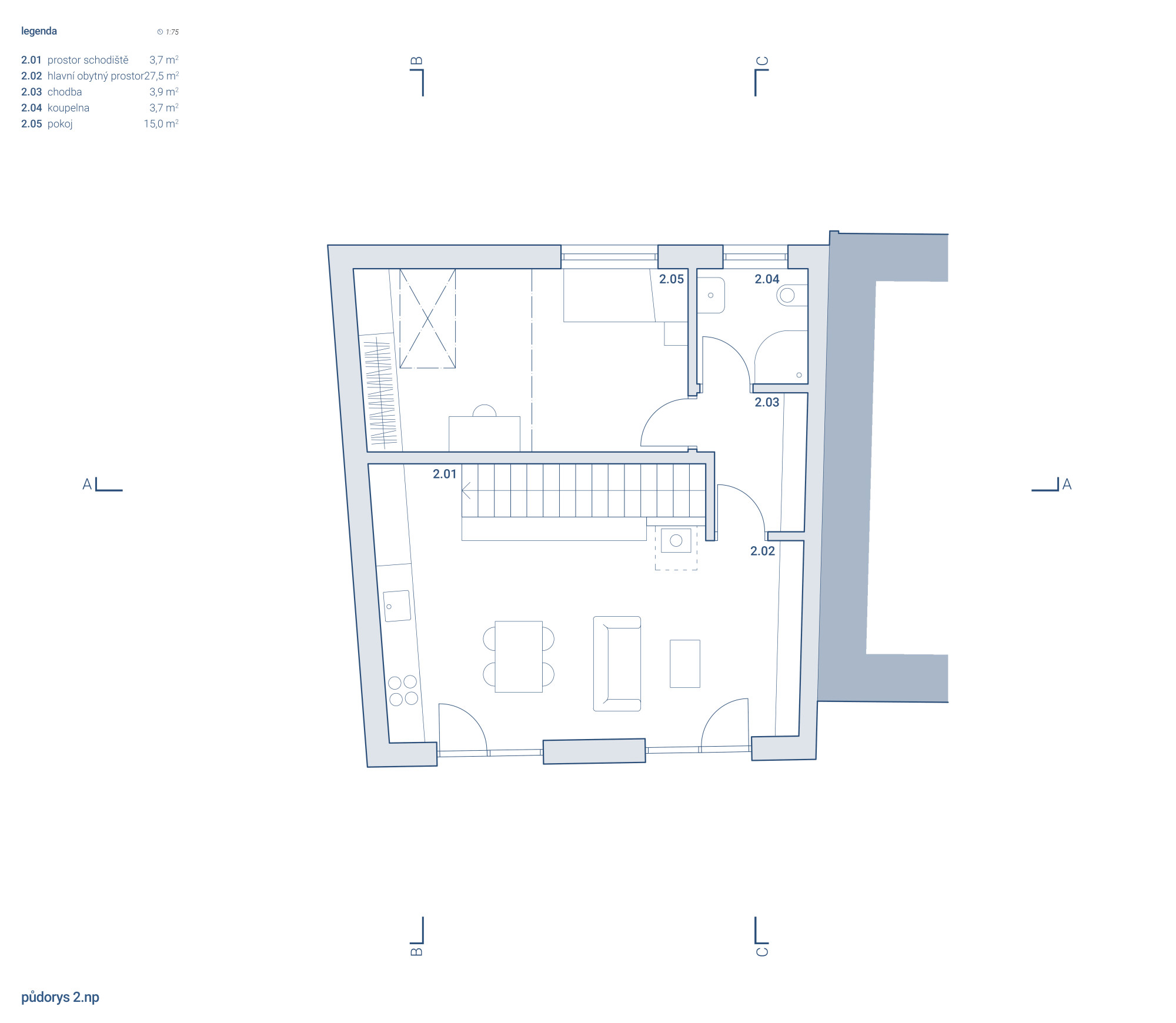
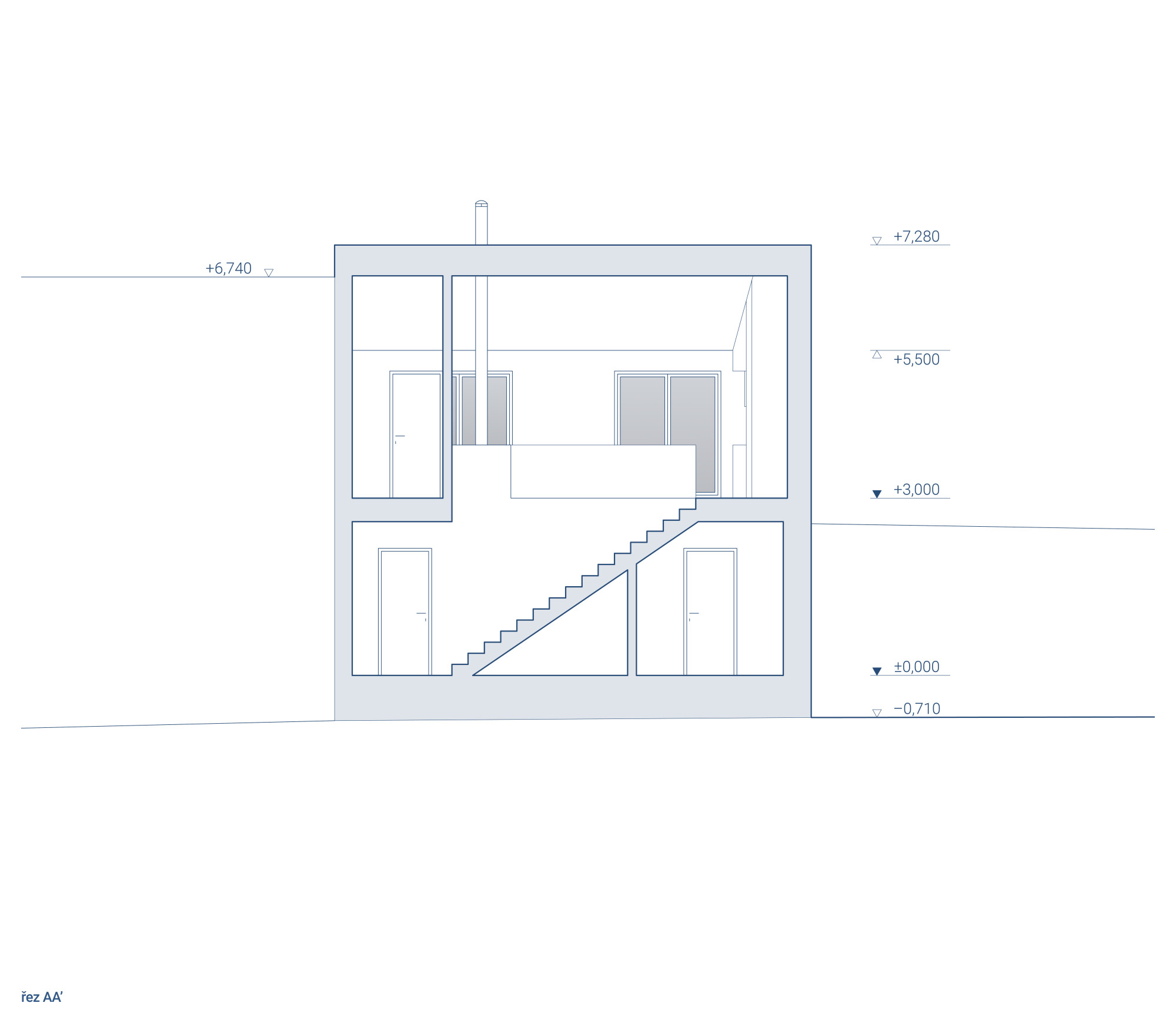
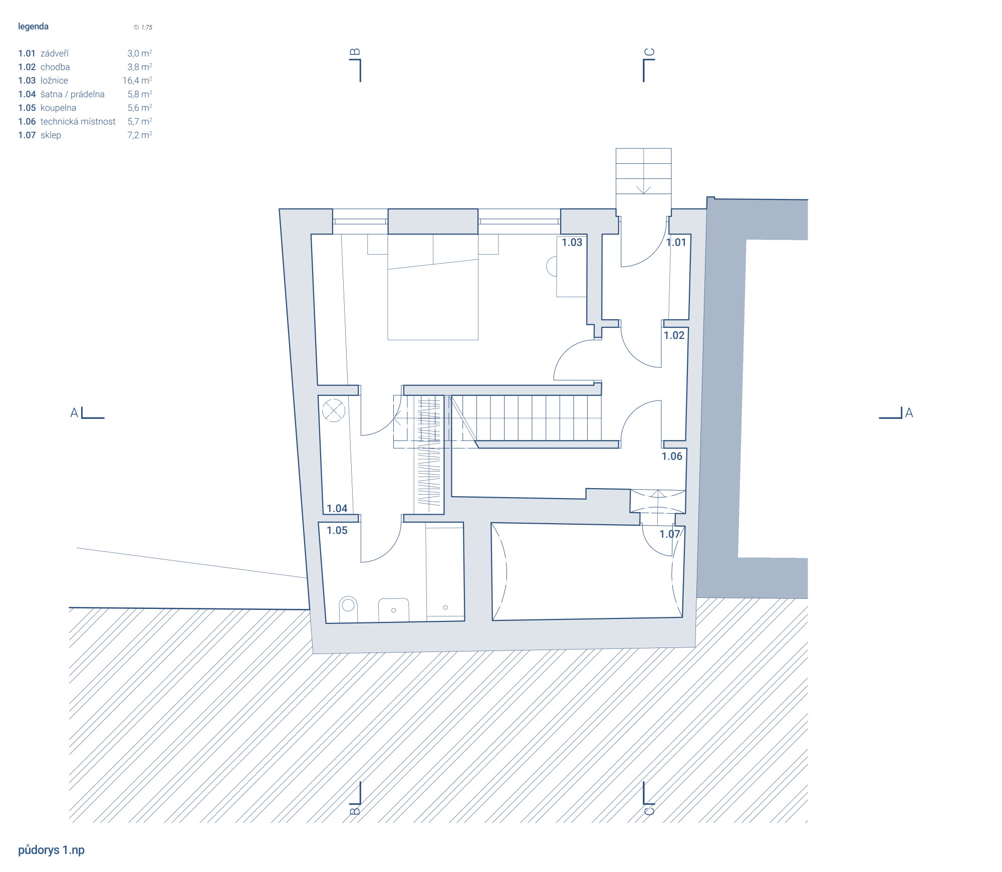
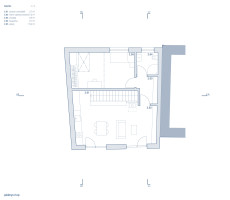
V první fázi se hledala správná výška nástavby a odpovídající tvar střechy s ohledem na okolní zástavbu, zejména na vztah výšky hřebene nové stavby vůči sousední budově. Zásadní roli hrála využitelnost podkroví, která byla limitována podchodnou výškou krovu. Při návrhu bylo třeba zohlednit i topografii terénu – stavba leží na pozemku, kde prudce stoupající svah umožňuje přístup do druhého podlaží přímo z úrovně terénu. Otevřením podkroví až do hřebene střechy získává prostor na vzdušnosti a velkorysosti.

Druhou stěžejní úlohou bylo řešení vertikální komunikace v domě. Původní točité schodiště nevyhovovalo současným bezpečnostním ani normovým požadavkům, proto padlo rozhodnutí nahradit jej přímým jednoramenným schodištěm. V rámci dispozice bylo prověřeno několik možných umístění, včetně varianty s přesunutím vstupních dveří na opačnou stranu čelní fasády. Nejvhodnější se ukázalo řešení s centrálním schodištěm, které přirozeně dělí dispozici a zajišťuje přehledné a bezpečné propojení podlaží.